Sale Agreed €40,000 - Residential
SITE WITH FULL PLANNING PERMISSION.
This a rare opportunity to acquire a site in this location with Full Planning Permission for a 2-bedroom detached property in the heart of Fermoy Town.
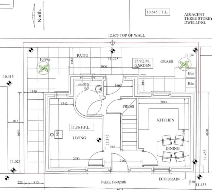
The proposed dwelling has has a floor area of 731 square feet (68 m2) over 2 floors, consisting of 2 bedrooms, livingroom, kitchen, 2 bathrooms and a patio / garden area to the rear.
Ground Floor:
Entrance Hall.
Livingroom: 3.95 m x 2.98 m.
Wheelchair Accessible Toilet: 1.54 m x 1.5 m
Kitchen/Diningroom: 3.95 m x 2.88 m
Patio and Garden Area.
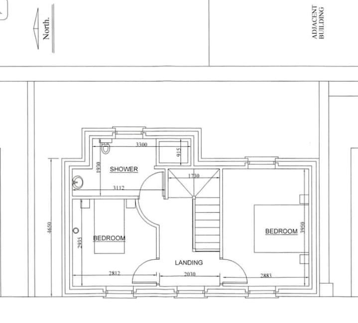
1st Floor:
Bedroom 1: 2.81 m x 2.91 m.
Bedroom 2: 3.95 m x 2.88 m.
Shower Room: 3.3 m x 1.91 m.





