Labbamollogga, Mitchelstown, Co. Cork, V35 C573

Labbamollogga, Mitchelstown, Co. Cork, V35 C573
Labbamollogga, Mitchelstown, Co. Cork, V35C573
For Sale Price on application - Residential
4 Bedrooms 2 Bathrooms 1 Garage 2010 Year Built

A bright south facing and well-proportioned four-bedroom detached bungalow, c. 1,500 square feet with detached garage, situated on a private elevated mature site (0.618 Acres). The exterior includes a large graveled driveway providing ample parking, bordered by mature trees and a manicured lawns. The property is within 5 miles of Mitchelstown and the Motorway and with a host of impressive extras.

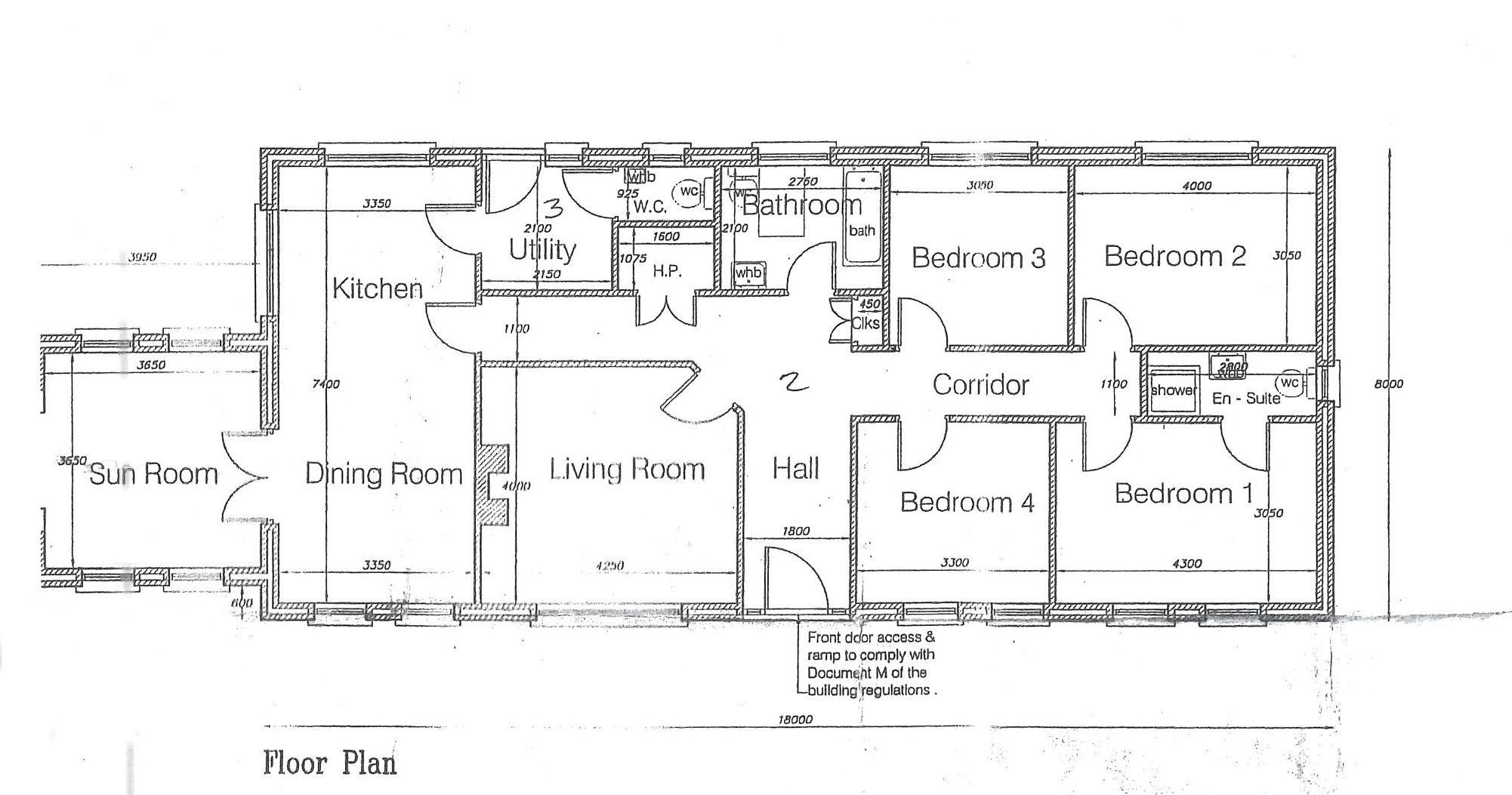
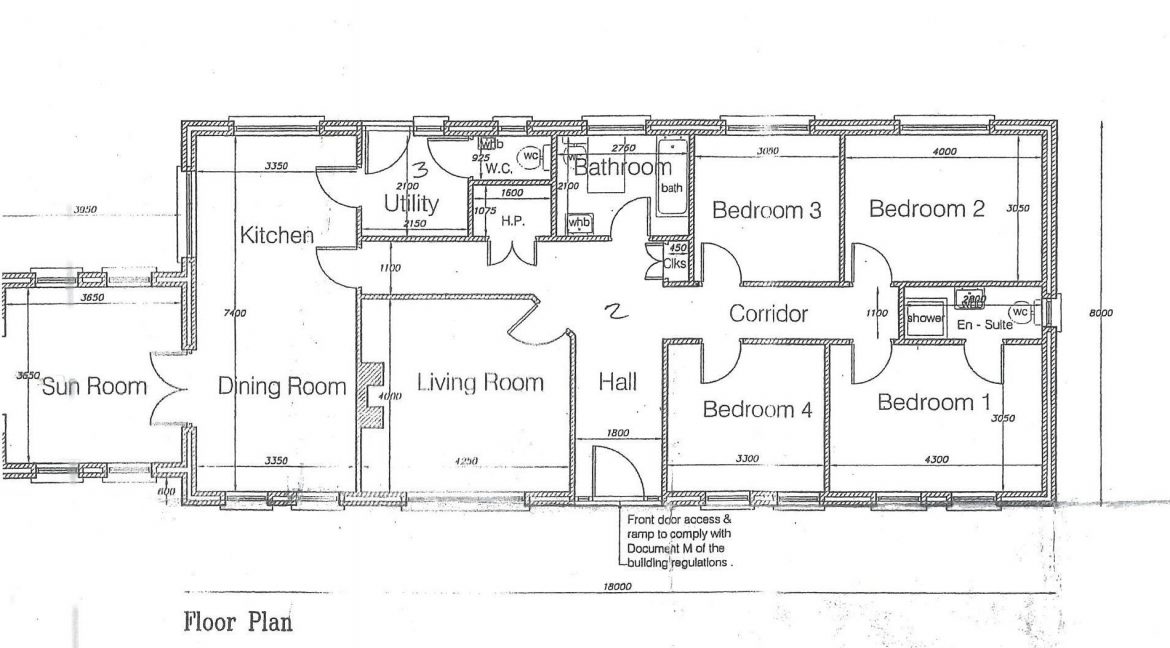
Entrance Hall: 3.05 m x 3.3 m, A spacious and light-filled entrance hall featuring a decorative timber front door with glazed sidelights fitted with roller blinds, timber floor, radiator, power points.

Livingroom: 4.25 m x 4 m, bright and beautifully presented livingroom featuring a large picture window fitted with roller blinds, wood-burning stove set within a traditional timber mantelpiece and a tiled inset, timber floor, T.V. & power points and radiator.

Kitchen/Diningroom: 7.4 m x 3.35 m, expansive open-plan kitchen/dining room with split level cream kitchen units with built-in electric oven and microwave, gas hob, wood-burning stove with timber surround, 3 windows fitted with roller blinds, laminated flooring, radiator, power points, recessed lighting, double French doors to Sun room.

Sun Room: 3.65 m x 3.65 m, double French doors, high pitched ceiling with recessed lighting, timber floor, radiator, T.V. & power points, recessed lighting, a large triangular window above double patio doors with multiple side windows, creating a seamless connection to the yard and garden.

Utility: 2.1 m x 2.15 m, a practical and well-equipped utility room featuring a cream-units, dark worktop, a stainless-steel inset sink, under-counter space for a washing machine and tumble dryer, power points, alarm, back door, Toilet & WHB – 0.9 m x 1.6 m, tiled floor and radiator.

Bedroom 1: 4.3 m x 3.05 m, a spacious and airy double bedroom, timber floor, 2 windows with fitted roller blinds, heating controls, radiator, power points, with En-suite: 2.8 m x 1.1 m, electric shower, WHB, toilet, window, tiled floor.

Bedroom 2: 4 m x 3.05 m, well-proportioned double bedroom offers a bright and tranquil space with radiator, power points, window with fitted with roller blind.

Bedroom 3: 3.05 m x 3.05 m, generously sized and light-filled double bedroom featuring a large, window fitted with roller blind, radiator, timber floor, power points.

Bedroom 4: 3.05 m x 3.3 m, well-proportioned and sunny double bedroom with twin windows fitted with roller blind, timber floor, power points, radiator.

Bathroom: 2.76 m x 2.1 m, generously sized main family bathroom with bath and overhead electric shower, toilet, WHB, tiled floor, double window.

A Vast Floored Attic Accommodation:

67.89 m2 (371 square feet).

BER Number:  104771423 – 132.78 kWh/m2/yr

FEATURES:

  • CCTV
  • Solar Panels which Heat the Water.
  • Burglar Alarm with Dual Settings.
  • Condensing Boiler.
  • Easy Commute to Nearby National School.
  • Close to Bus Route for Secondary Schools.
  • Detached Garage with Floored Attic Space.
  • Will Qualify for Recently Announced SEAI Energy Upgrade Grants.
  • Bored Well with Fresh Water Supply.
Property Map

Energy Performance

  • Energy Class: B
  • Energy Performance: 104771423
  • EPC Current Rating: 3
  • A+
  • A
  • B
  • C
  • D
  • E
  • F
  • G

Similar Properties

Leave a Reply

Your email address will not be published. Required fields are marked *

Compare Properties

Compare
You can only compare 4 properties, any new property added will replace the first one from the comparison.